Коттедж для отдыха “Барни Хаус”
58 м2
На 2 номера
Цена
у.е.
22 800
Листайте вниз
65 рабочих дней
от начала работ до готового домика на участке
20% экономии бюджета
на строительстве по системе “все включено”
12 месяцев в год
подходит для круглогодичного проживания
50-75 лет срок службы
каркасных коттеджей и домов
Цена
у.е.
22 800
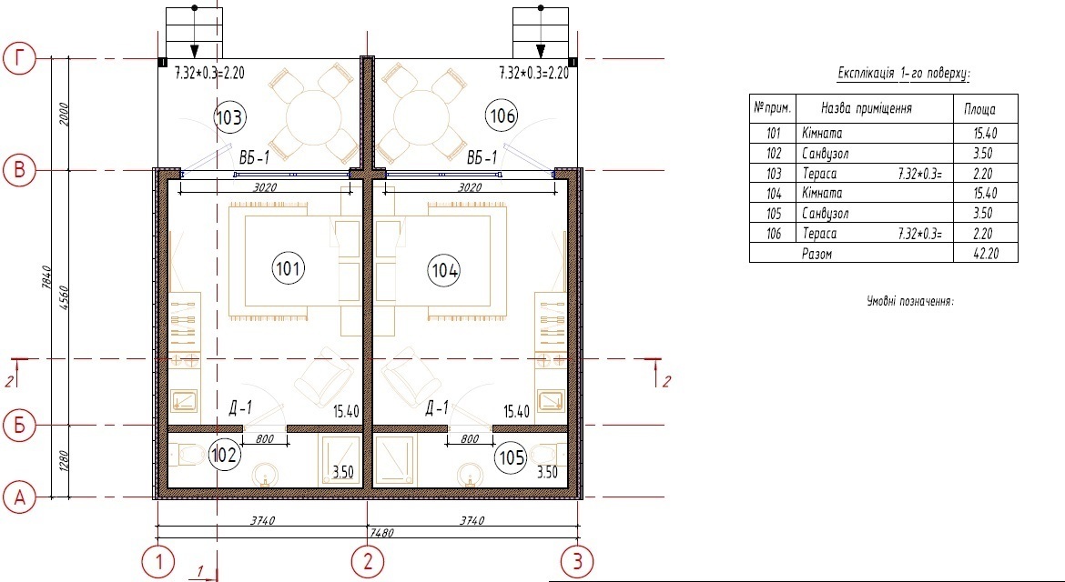
Площадь - 58 м2
Длина - 7,84 м, Ширина - 7,48 м
Высота стен - 2,2 м - 3,4 м
Терраса - 14,64 м.
Проект коттеджа на 2 номера Барни Хаус
Строительство коттеджа под ключ по системе “все включено”
Монтаж в ПОДАРОК
Фундамент
Геошурупы 14 шт, диаметр 89мм, длина 2.5м, обработка и засыпка.
Домокомплект
Комплект стен, готовые панели, согласно раскрою - внешние и несущие 45*145 мм, , межкомнатные перегородки 45*145 мм. Обшивка всех стен для жесткости ОСБ 10мм. Пол 1-го этажа - 195*45мм + ОСБ 18мм
Кровля
Стропильная система брус обрезной 150*50, ,гидробарьер, обрешетка 25х100мм, контр обрешетка 25х40мм, металлопрофиль 0.45мм, ветровая планка
Теплоизоляция
Утепление стен, пола и кровли базальтовым утеплителем 150 мм
Фасадная отделка
Обрешетка, гидробарьер, металлопрофиль 0,45мм с комбинацией металлосайдинг
Внутренняя отделка
Полы - линолеум, стены: комната - ПВХ панели с ламинацией/деревянная вагонка, санузел - ПВХ панели влагостойкие с ламинацией, потолки - натяжные Бельгия
Инженерия
Разводка электрики, канализации и водопровода
Окна и двери
Металлопластиковые окна и двери Steko по проекту; 5-и камерный профиль, 2-х камерный стеклопакет с энергосбережением и внешней ламинацией
Процесс строительства или как появится ваш коттедж на участке
01
Подписание договора и подготовка проекта под ваш запрос и особенности участка
02
Подготовка участка
03
Монтаж фундамента
04
Монтаж домокомплекта
05
Отделка кровли, фасада и монтаж окон
06
Утепление пола, стен и кровли
07
Монтаж коммуникаций
08
Внутренняя чистовая отделка
09
Уборка участка от строительного мусора
10
Сдача готового коттеджа
Дома и коттеджи от B2B Dom, которые уже приносят прибыль своим владельцам
Барн Хаус
58 м2
На 2 номера
База отдыха на берегу Азовского моря Геническ, Арабатская стрелка, 2021
Хайтек Триплекс
88 м2
Частное домовладение - домик под сдачу, Одесса, 2021
Барни семейный
58 м2
База отдыха в Одесской области - Одесса, 2021
Вы не знаете, какой проект выбрать? У вас есть идеи, которые вы хотите реализовать? Вы сначала хотите “прицениться”?
Пройдите короткий опрос и получите ориентировочный расчет стоимости строительства с примерами проектов по вашему запросу
Спасибо. Остался последний шаг:
Что Вы хотите строить?
0
500
Какой тип кровли вы бы хотели?
Контакты
г. Одесса, ул. Тополевая, 18/2
Мы в соц. сетях
Сайт запустил: название компании)